ODONELL
3
Dormitorios
4 Baños
192 m2
2.600.000,00 €

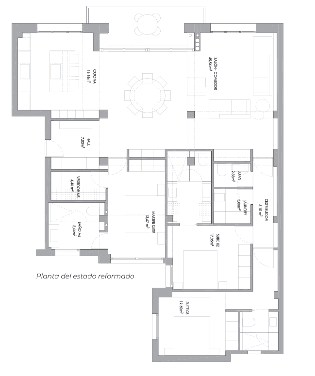
Excepcional piso a estrenar. Se trata de un luminoso y amplio piso de 192 metros cuadrados totales, que incluye portero en la finca. Se lleva a cabo una renovación total del espacio. El piso cuenta con una espaciosa y diáfana estancia destinada a la zona social, donde la cocina se ubica abierta al salón-comedor y está completamente equipada con electrodomésticos marca MIELE. El salón se completa con una terraza abierta con buena entrada de luz. La zona privada se distribuye en torno a tres espaciosas habitaciones en suite, de las cuales una goza de un vestidor
Tamaño
192
Año de construcción
Plantas
5
Dormitorios
3
Baños
4















