JUAN DE LA CIERVA
3
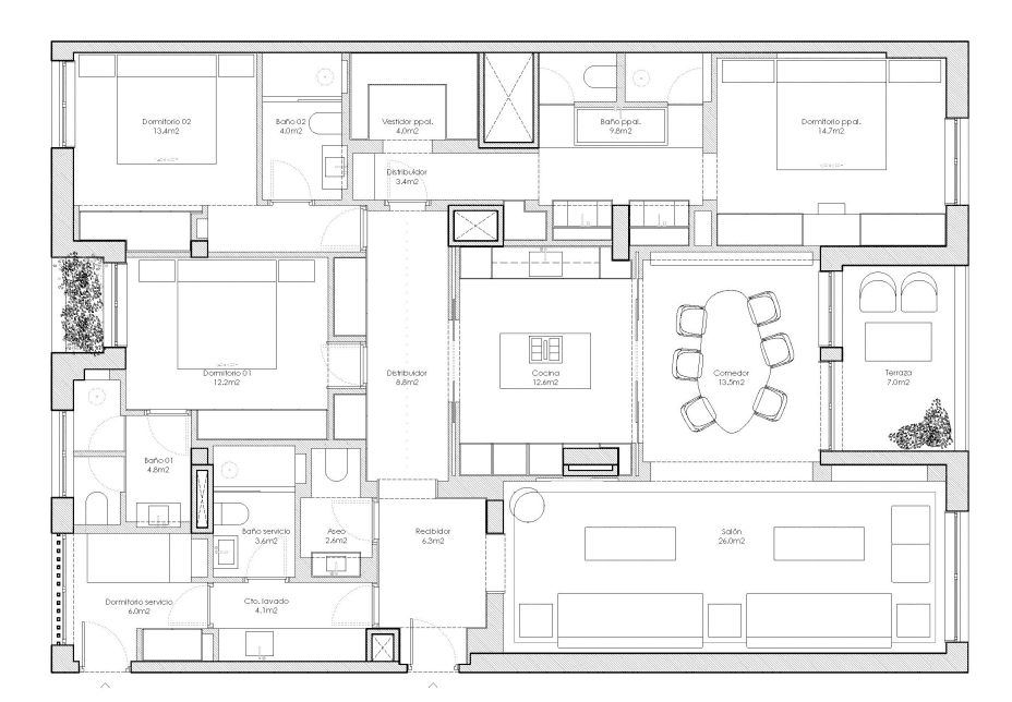
Dormitorios
4 Baños
245 m2
2.690.000,00 €
El piso, completamente exterior y con una agradable terraza, destaca por su luminosidad y versatilidad. Su distribución permite configurar entre 3 y 4 dormitorios, adaptándose a las necesidades de quienes buscan espacios amplios para despacho, estudio o zona de invitados. Incluye plaza de garaje, trastero, portero físico y acceso a zonas verdes, todo en un entorno consolidado y bien comunicado. La elevada revalorización histórica de El Viso y la escasez de inmuebles similares aseguran un alto potencial de rentabilidad, tanto para alquiler como para reventa. Esta propiedad es una inversión segura y exclusiva, perfecta para quienes desean vivir o invertir en una de las zonas más valoradas de Madrid.
JUAN DE LA CIERVA
Tamaño
245
Año de construcción
1970
















