PRINCIPE DE VERGARA
4
Dormitorios
4 Baños
281m² m2
SOLD

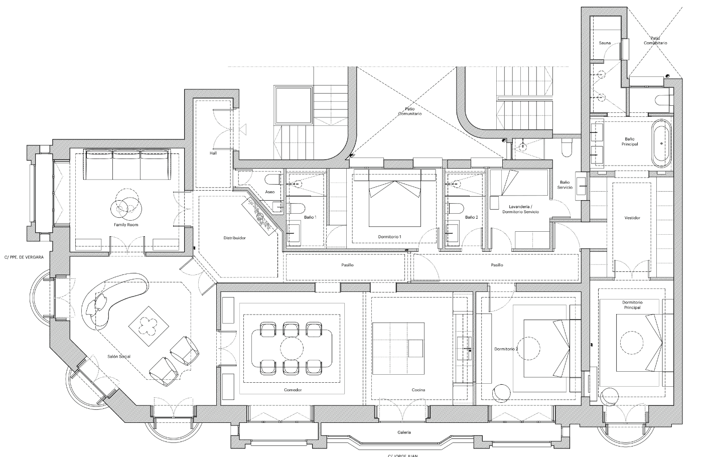
Esta propiedad prime en Recoletos, Madrid, ofrece una oportunidad de inversión excepcional. Situada en la prestigiosa calle Príncipe de Vergara, su ubicación garantiza una alta demanda y revalorización constante. Con una fachada señorial y techos de 3,50 metros, la propiedad destaca por su elegancia y exclusividad, ideal para un comprador exigente.
Príncipe de Vergara esq- Jorge Juan | Recoletos
Tamaño
281m²
Año de construcción
1920
Plantas
0
Dormitorios
4
Baños
4
















