ALCALÁ
3
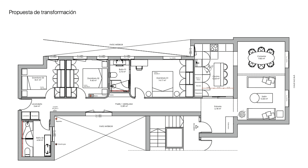
Dormitorios
4 Baños
138 m2
1.695.000,00 €
La vivienda, situada en una finca clásica con portal amplio y diseño señorial, destaca por sus techos altos de 3 metros, fachada exterior orientada al sureste y grandes ventanales que inundan de luz natural todas las estancias. Su distribución, con vistas despejadas y apertura a dos patios interiores, garantiza amplitud, luminosidad y confort, además de una visibilidad privilegiada en la intersección de edificios emblemáticos. Esta propiedad es ideal tanto para familias que buscan calidad de vida y seguridad, como para inversores que desean asegurar un retorno atractivo gracias a la alta demanda de alquiler y la revalorización constante del barrio. Vivir o invertir aquí es apostar por exclusividad, comodidad y un potencial inmobiliario incomparable.
ALCALÁ
Tamaño
138
Año de construcción
1929
















